
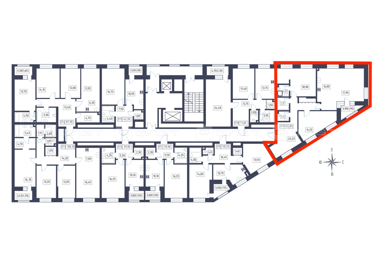
2-комнатная квартира, №465
Респ Татарстан, г Казань, ул Ягодинская, 3, Кировский
- 102.85/35.1/33.95 м²
- 15/15 этаж
- Квартира
- Крыловка Парк
- СМУ 88
- Бизнес
- 1 кв. 2025г.
- Монолит-кирпич
- 3.5 м
- Черновая
- 8
- 2
- 3.9 м²
- 2.9 м²
- 2.4 м²
- 3.3 м²
25 087 626 ₽

Респ Татарстан, г Казань, ул Ягодинская, 3, Кировский