
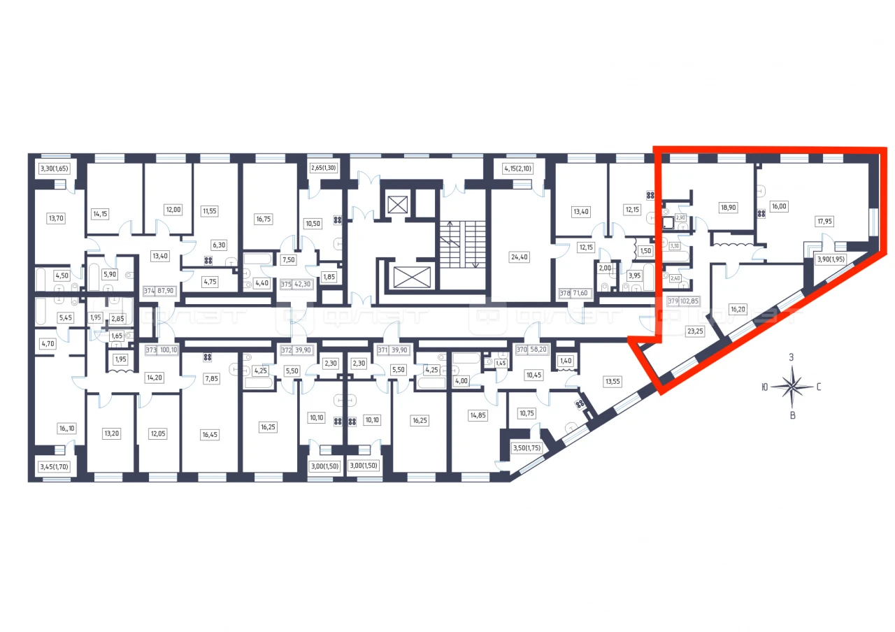
2-комнатная квартира, №385
Респ Татарстан, г Казань, ул Ягодинская, 3, Кировский
- 102.85/35.1/33.95 м²
- 5/15 этаж
- Квартира
- Крыловка Парк
- СМУ 88
- Бизнес
- 1 кв. 2025г.
- Монолит-кирпич
- 3 м
- Черновая
- 8
- 2
- 3.9 м²
- 2.9 м²
- 2.4 м²
- 3.3 м²
21 863 480 ₽

Респ Татарстан, г Казань, ул Ягодинская, 3, Кировский